11 Sunset Avenue

Hampstead, NH 03841
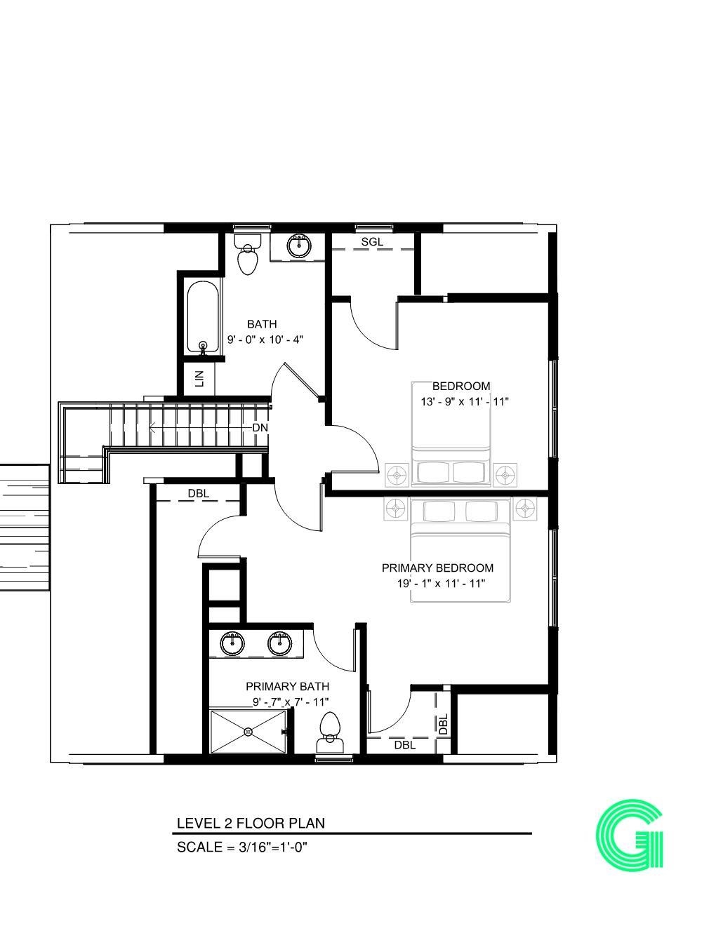
Beds
2
Baths
3
Square Ft.
1,818
$824,900
New Construction. Sunset Lake water view/access. Contemporary Cape home offering an open concept floor plan with a view! The foyer greets and leads you into the fireplace living room and the formal dining area. All accented by a view of the water and with sliding glass doors leading to aRead MoreRead Less
Courtesy of Thom Gregsak, Big Island Real Estate 603-329-5903
Listing Snapshot
Days Online
60
Last Updated
Property Type
Single Family
Beds
2
Full Baths
2
Partial Baths
1
Square Ft.
1,818
Lot Size
0.16 Acres
Year Built
2026
MLS Number
5077565
30 Days Snapshot Of 03841
$850k
+82%
(avg) sold price
2
-33%
homes sold
3
-96%
(avg) days on market
Snapshot
Area Map

Source: Home Junction

Additional Details
Property Access
Road Frontage: Yes
Building
Basement: Yes, 6 rooms, Built in 2026, 1,818 total finished sqft, Total stories: 1.75, Construction status: New Construction, 1,818 finished sqft above grade
Roof
Architectural Shingle
Basement
Basement access: Interior, Concrete, Concrete Floor, Full, Interior Stairs, Walkout, Basement Stairs
Floors
Laminate, Other, Tile
Appliances & Equipment
Dishwasher, Gas Range, Refrigerator
Heating
Propane, Forced Air
Cooling
Central AC
Water Features
Water restrictions: Unknown, Water body type: Lake
Utilities
Electric Company: Eversource, Electric: Circuit Breaker(s)
Garage
Garage: Yes, Garage capacity: 2
Lot
0.16 acres, 1,818 approx. sqft, 6,970 sqft
Parking
Driveway: Paved
Property
Flood Zone: Unknown, Zoning: B-Res, Seasonal: No
Sewer
Leach Field, Private, Septic
Find The Perfect Home

'VIP' Listing Search

Whenever a listing hits the market that matches your criteria you will be immediately notified.

Join The List
Mortgage Calculator
Monthly Payment
$0

Source: Home Junction

Agent profile image

Schools In The Area

Check out nearby schools with ratings and contact info.

Source: Home Junction

Similar Listings

View More Listings

This information is deemed reliable, but not guaranteed. The data relating to real estate displayed on this Site comes in part from the IDX Program of PrimeMLS. The information being provided is for consumers' personal, non-commercial use and may not be used for any purpose other than to identify prospective properties consumers may be interested in purchasing. Data last updated .
Data last updated .