21 Berry Road

Derry, NH 03038
Beds
3
Baths
3
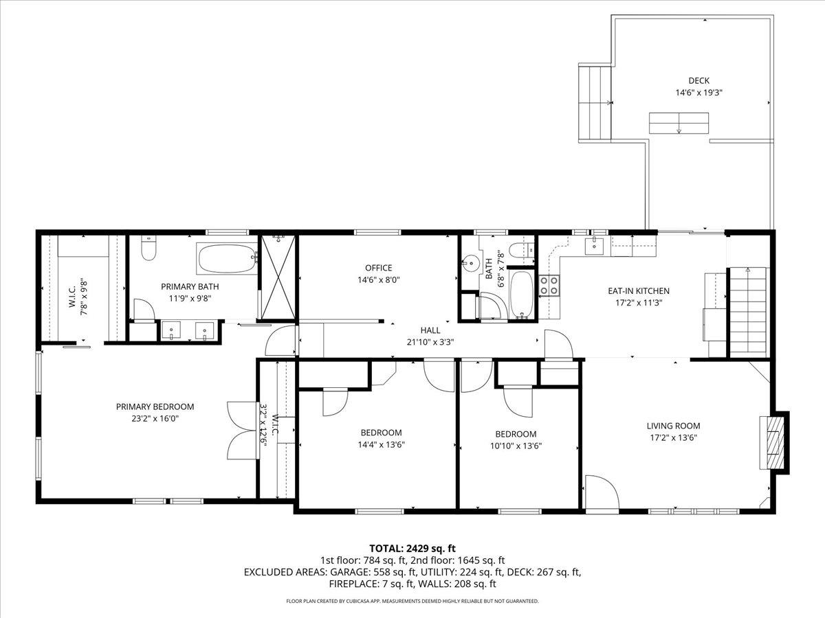
Square Ft.
2,612
$675,000
If you have been looking for space, privacy, and a layout that simply makes sense, this home delivers! Located in a beautiful neighborhood, this well-designed home offers easy one-level living with the flexibility today's buyers want. The open concept kitchen, dining, and living area is the heart of the home,Read MoreRead Less
Courtesy of Amanda Plecinoga, Keller Williams Realty-Metropolitan 603-232-8282
Listing Snapshot
Days Online
45
Last Updated
Property Type
Single Family
Beds
3
Full Baths
2
Partial Baths
1
Square Ft.
2,612
Lot Size
1.21 Acres
Year Built
1970
MLS Number
5078074
30 Days Snapshot Of 03038
$500k
-2%
(avg) sold price
27
+17%
homes sold
31
+10%
(avg) days on market
Snapshot
Area Map

Source: Home Junction

Additional Details
Property Access
Road Frontage: Yes
Building
Basement: Yes, 7 rooms, Built in 1970, 2,612 total finished sqft, Total stories: 1, Construction status: Existing, 252 unfinished sqft below grade, 1,720 finished sqft above grade, 892 finished sqft below grade
Roof
Architectural Shingle, Asphalt Shingle
Basement
Basement access: Interior, Concrete, Finished, Full
Floors
Carpet, Tile, Wood
Appliances & Equipment
Dishwasher, Dryer, Electric Range, Refrigerator, Washer
Heating
Oil, Baseboard, Hot Water
Cooling
Central AC
Utilities
Electric Company: Direct Energy, Electric: Circuit Breaker(s)
Garage
Garage: Yes, Garage capacity: 2
Lot
1.21 acres, 2,864 approx. sqft, 52,708 sqft
Parking
Driveway: Paved
Property
Flood Zone: Unknown, Zoning: MDR, Seasonal: No
Sewer
Private, Septic
Taxes
Gross amount: $10,249
Find The Perfect Home

'VIP' Listing Search

Whenever a listing hits the market that matches your criteria you will be immediately notified.

Join The List
Mortgage Calculator
Monthly Payment
$0

Source: Home Junction

Agent profile image

Schools In The Area

Check out nearby schools with ratings and contact info.

Source: Home Junction

Similar Listings

View More Listings

This information is deemed reliable, but not guaranteed. The data relating to real estate displayed on this Site comes in part from the IDX Program of PrimeMLS. The information being provided is for consumers' personal, non-commercial use and may not be used for any purpose other than to identify prospective properties consumers may be interested in purchasing. Data last updated .
Data last updated .