9 County Road

Windham, NH 03087
Beds
4
Baths
4
Square Ft.
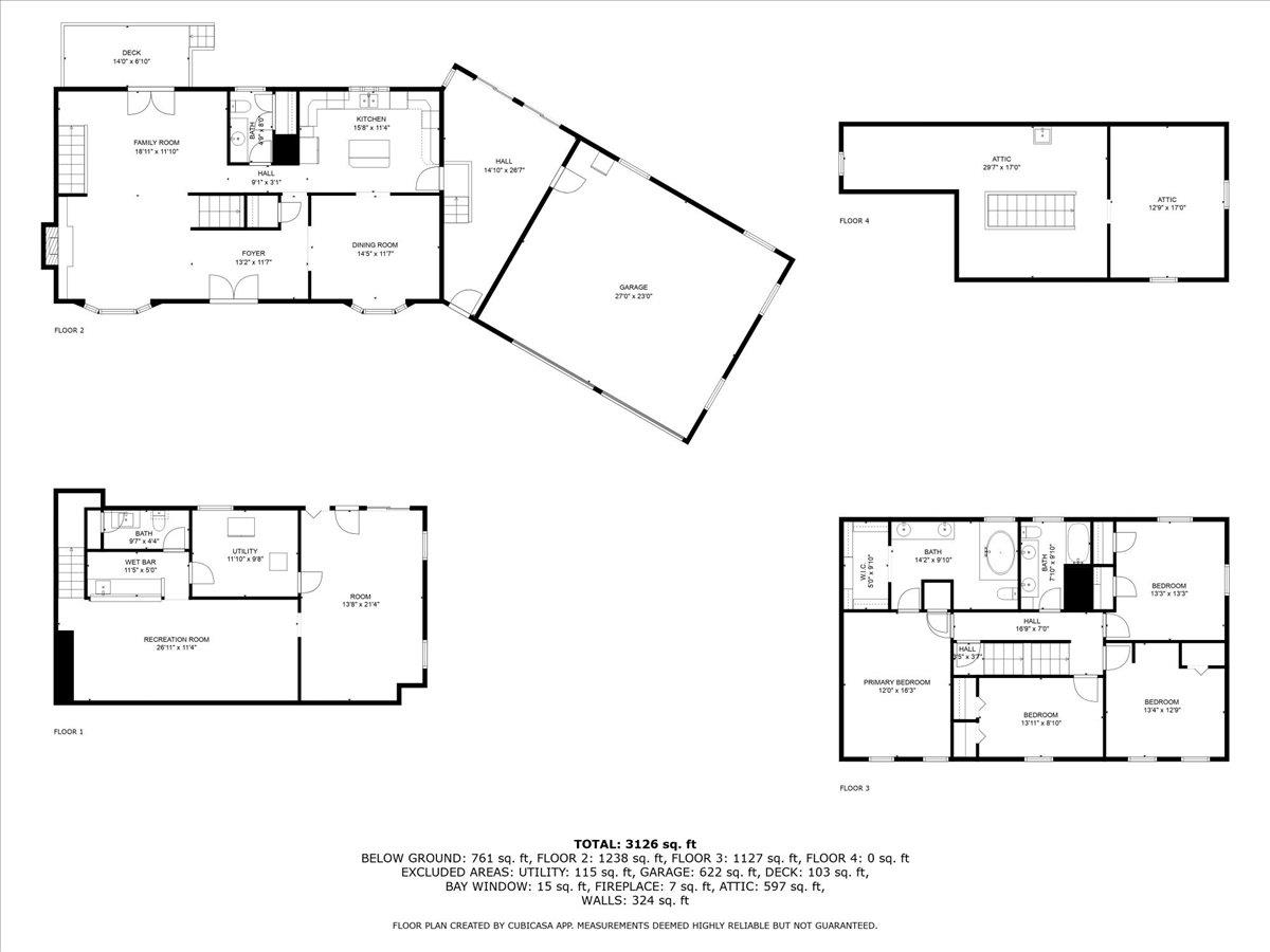
2,938
$749,900
OPEN HOUSE CANCELLED Experience the perfect blend of expansive living and flexible space both inside and out. Step into the large front to back family room, complete with an inviting fireplace and French doors that open to a new deck overlooking the ample backyard. The kitchen features a center island,Read MoreRead Less
Courtesy of Kristine Lamphere, Keller Williams Realty-Metropolitan 603-232-8282
Listing Snapshot
Days Online
27
Last Updated
Property Type
Single Family
Beds
4
Full Baths
2
Partial Baths
2
Square Ft.
2,938
Lot Size
1.99 Acres
Year Built
1971
MLS Number
5081410
30 Days Snapshot Of 03087
$804k
-14%
(avg) sold price
7
-30%
homes sold
31
+29%
(avg) days on market
Snapshot
Area Map

Source: Home Junction

Additional Details
Property Access
Road Frontage: TBD
Building
Basement: Yes, 9 rooms, Built in 1971, 2,938 total finished sqft, Total stories: 2, Construction status: Existing, 408 unfinished sqft below grade, 2,288 finished sqft above grade, 650 finished sqft below grade
Roof
Asphalt Shingle
Basement
Basement access: Interior, Concrete, Finished, Sump Pump
Floors
Carpet, Hardwood, Tile
Appliances & Equipment
Electric Cooktop, Dishwasher, Microwave, Refrigerator
Heating
Oil
Cooling
None
Utilities
Electric: Circuit Breaker(s)
Garage
Garage: Yes, Garage capacity: 2
Lot
1.99 acres, 3,346 approx. sqft, 86,684 sqft
Parking
Driveway: Paved
Property
Flood Zone: No, Zoning: Residential, Seasonal: No
Sewer
Private
Taxes
Gross amount: $10,461
Find The Perfect Home

'VIP' Listing Search

Whenever a listing hits the market that matches your criteria you will be immediately notified.

Join The List
Mortgage Calculator
Monthly Payment
$0

Source: Home Junction

Agent profile image

Schools In The Area

Check out nearby schools with ratings and contact info.

Source: Home Junction

Similar Listings

View More Listings

This information is deemed reliable, but not guaranteed. The data relating to real estate displayed on this Site comes in part from the IDX Program of PrimeMLS. The information being provided is for consumers' personal, non-commercial use and may not be used for any purpose other than to identify prospective properties consumers may be interested in purchasing. Data last updated .
Data last updated .